20-футовые блок-контейнеры: Ваш офисный или сантехнический блок-контейнер
20-футовые блок-контейнеры: Внутренние и наружные размеры
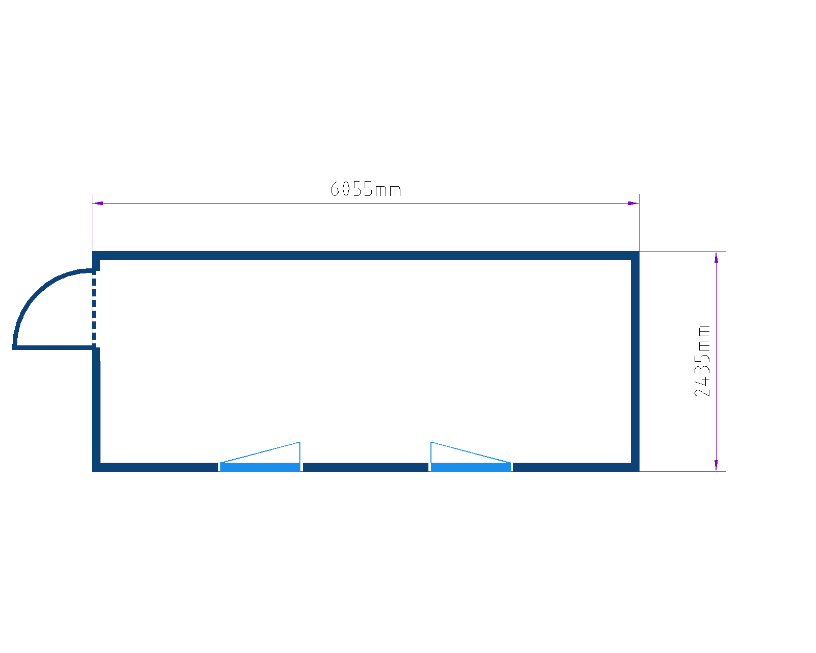
Наружные размеры стандартных 20-футовых блок-контейнеров в миллиметрах: 6 055 × 2 435 × 2 591 (Д × Ш × В). Кроме того, поставляем 20-футовые блок-контейнеры с альтернативной высотой:
-
2.800 MM
-
2.960 MM
Внутренние размеры (Д × Ш × В) также указаны в миллиметрах: 5 860 × 2 240 × 2 340. Также они могут иметь такую высоту:
- 2.540 MM
- 2.700 MM
Эти размеры относятся к стандартным офисным блок-контейнерам и стандартным санузлам.
Размеры (Д × Ш × В) 20-футовых складских контейнеров:
- Снаружи: 6.058 x 2.438 x 2.591 MM
- Внутри 5.898 x 2.344 x 2.376 MM

![[key=10_fuss] Сантехнические блок-контейнеры](/-/m/picturepark/ctx/start/container-und-module/20-fuss-container/content/tabs/sanitaercontainer/sanitaercontainer/content-left/image/image/8da074a949cb431/__80______.png)
Типы 20-футовых блок-контейнеров: Многоцелевое использование
20-футовые блок-контейнеры можно комбинировать друг с другом, создавая различные конфигурации помещений. Также их можно ставить друг на друга, при этом количество этажей зависит от типа блок-контейнера. Таким образом можно просто и быстро создать идеальное помещение, именно там, где оно необходимо.
Места отдыха на строительной площадке или санузел в качестве зоны комфорта в коммунальной сфере — ниже Вы можете ознакомиться со всеми типами 20-футовых блок-контейнеров КОНТЕЙНЕКС PУC.
20-футовые блок-контейнеры — покупка илиаренда: Информация о продукции
Варианты оформления и оснащения для 20-футовых блок-контейнеров
20-футовые блок-контейнеры можно купить или арендовать. Они доступны в ассортименте продукции КОНТЕЙНЕКС PУC как офисные и сантехнические блок-контейнеры. В зависимости от того что Вам нужно, мы предлагаем различные варианты оформления и оснащения:
- Взаимозаменяемые дверные и оконные панели
- Система защиты от взлома и другие средства защиты
- Различные напольные покрытия
- Индивидуальное лакокрасочное покрытие
- Электрическое оборудование, например, светильники,внешние трехфазные разъемы или силовые розетки
- Энергосберегающие опции, которые уменьшаютпотребление природных ресурсов и Ваши расходы

Поставка и монтаж

Покупка блок-контейнеро: причины, почему КОНТЕЙНЕКС PУC является лучшим выбором для Вас!
Как предприятие с большим опытом в сфере блок-контейнеров и модульных зданий, мы предлагаем Вам высококачественные мобильные помещения, которые удовлетворят любые потребности.
- Ведь, имея более 40 лет опыта в сфере модульных зданий, мы не только отлично зарекомендовали себя как производитель качественной продукции, но и предлагаем высокий уровень сервиса!
- Благодаря нашим собственным заводам мы обеспечиваем стабильно высокие стандарты качества.
- Наши блок-контейнеры производятся с использованием высоких технологических стандартов и многочисленных мер по обеспечению качества продукции.
- Важным является также то, что мы уделяем особое внимание соблюдению строгих стандартов по защите окружающей
- среды как при производстве, так и при поставке блок-контейнеров.
Отправьте запрос по 20-футовому блок-контейнеру
Нужен контейнер с размерами 6 055 × 2 435 × 2 591 (Д × Ш × В), который идеально удовлетворит Ваши потребности благодаря разным вариантам оформления и оснащения? Тогда высококачественный 20-футовый блок-контейнер КОНТЕЙНЕКС PУ станет наилучшим решением для Вас. Наши сотрудники охотно проконсультируют Вас по телефону или при личной встрече. Поэтому не теряйте времени и пришлите нам Ваш запрос. Вместе мы реализуем Ваш проект в кратчайшие сроки!
Свяжитесь с нами по электронной почтеЧаВо
Какие размеры имеет 20-футовый блок-контейнер?
Наружные размеры 20-футовых блок-контейнеров КОНТЕЙНЕКС РУС: 6055 × 2435 × 2591 мм (Д × Ш × В). 20-футовые контейнеры имеют стандартизированную длину и ширину. Что касается высоты, мы предлагаем также другие размеры (в миллиметрах):
2.800 мм
2.960 мм
Внутренние размеры (Д × Ш × В) 20-футовых блок-контейнеров КОНТЕЙНЕКС РУС.
5.860 х 2.240 х 2.340
5.860 х 2.240 х 2.540
5.860 х 2.240 х 2.700
Сколько весит 20-футовый блок-контейнер?
В зависимости от типа 20-футовый блок-контейнер весит от 1270 до 2350 кг. Кроме того, масса еще зависит от соответствующего исполнения.
- 20-футовый складской контейнер: 1 270 кг
- Офисный блок-контейнер: от 1 850 кг
- Сантехнический блок-контейнер: от 2 500 кг
- Морской контейнер DV: 2 050 кг
- Морской контейнер HC: 2 100 кг

